Описание
Характеристики
Отзывы
Описание
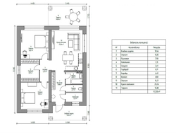
В вариантах указана стоимость строительства дома из разного материала. Цены указаны за строительство дома в ипотеку, при заказе строительства дома за наличный расчет предоставляется скидка 10%. . Просторный дом 112 м² для большой семьи: три изолированные спальни (15,05 м², 16,31 м² и 10,00 м²) обеспечат личное пространство каждому, огромная кухня-котельная 25,36 м² объединяет зону приготовления пищи и уютные семейные вечера, а закрытая терраса 15,00 м² станет любимым местом для чаепитий в любую погоду — также в проекте: вместительная гардеробная (8,11 м²), два санузла (4,00 и 3,13 м²) и функциональная входная группа 10,46 м². Для более подробной информации обратитесь в личные сообщения .
Характеристики
Площадь
112 кв. м
Отзывы
Отзывов еще никто не оставлял
Аналогичные товары
