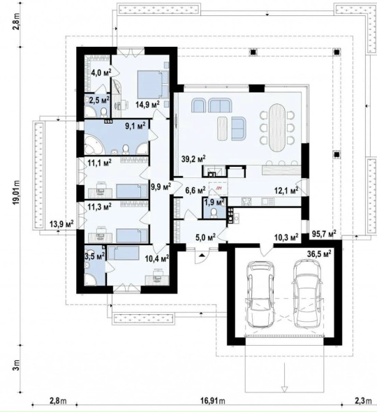
Одноэтажный дом с уникальным дизайном, большим гаражом и открытыми террасами — это отличный пример того, как эргономично и современно можно обустроить пространство. Такой проект рассчитан на проживание семьи из 4-5 человек. В представленном варианте предусмотрены все необходимые помещения для комфортной жизни, включая спальни с собственными гардеробными комнатами — это современные атрибуты удобного жилья. Наша строительная компания стремится реализовать в каждом проекте лучшие идеи и технологии. И этот частный дом площадью 186 кв.м. подтверждает это правило. Красивый экстерьер, удобная планировка, наличие всех необходимых технических помещений — что ещё нужно для вашего комфорта? В данном доме можно предусмотреть кабинет для комфортной работы вне городского шума и суеты.
