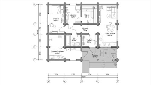
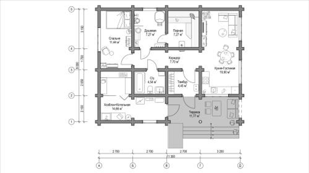
В вариантах указана стоимость строительства дома из разного материала. Цены указаны за строительство дома в ипотеку, при заказе строительства дома за наличный расчет предоставляется скидка 10%. Проект дома-бани "Ситники" размером 9 на 11,3 м и площадью 101,7 кв.м – это проект одноэтажного дома из оцилиндрованного бревна, который содержит в себе банный комплекс. В проекте дома-бани предусмотрены все необходимые помещения: терраса, тамбур, коридор, спальня, туалет и небольшая кухня-гостиная. Кроме того, для принятия банных процедур в представленном проекте дома запроектированы парная и душевая. Интересной особенностью проекта является наличие дополнительного помещения, которое обеспечено отдельным входом и объединяет в себе котельную и хозяйственный блок. Благодаря наличию хозяйственного помещения, нет необходимости в возведении на участке сооружения под сарай.
