Описание
Характеристики
Отзывы
Описание
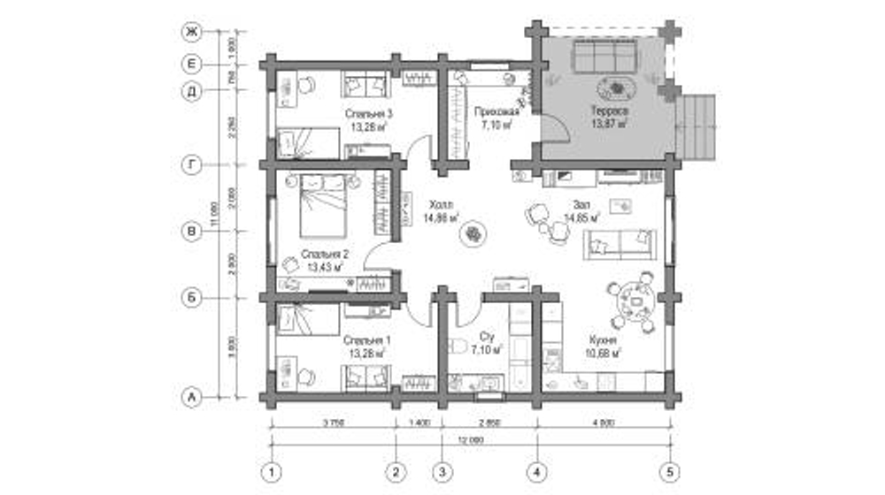
В вариантах указана стоимость строительства дома из разного материала. Цены указаны за строительство дома в ипотеку, при заказе строительства дома за наличный расчет предоставляется скидка 10%. Здесь сделан только один вход, широкая терраса заменена на небольшую боковую, чтобы не затенять окна, а также произведена внутренняя перепланировка. В проекте одноэтажного дома "Ясная поляна" пол запроектирован по плите или грунту (утепленная стяжка).
Характеристики
Площадь
124 кв. м
Отзывы
Отзывов еще никто не оставлял
Аналогичные товары
