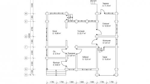
В вариантах указана стоимость строительства дома из разного материала. Цены указаны за строительство дома в ипотеку, при заказе строительства дома за наличный расчет предоставляется скидка 10%. Проект одноэтажного дома "Долгопрудный" размером 12,5 на 14 м и площадью 131,3 кв.м – проект красивого, удобного одноэтажного дома, в плане которого предусмотрен гараж и небольшая терраса. Все помещения проекта расположены в одном уровне, что придает комфорт в их использовании, а также предоставляет быстрый доступ в любую комнату. Главный вход в дом организован через крыльцо, которое ведет в прихожую. Также на этаже запроектированы удобный кабинет, с/у, котельная, уютная спальня и просторная гостиная, объединенная большой аркой с кухней. Особое настроение гостиной придает оригинально расположенная на фасаде двухуровневая группа окон, которая обеспечивает отличную инсоляцию, наполняет комнату теплыми лучами дневного света и уютной атмосферой. Кроме центрального входа проект одноэтажного дома подразумевает три дополнительных. Один из них – в гараже. Встроенный гараж запроектирован на одну машину, и кроме въездных ворот имеет вход во внутреннюю, жилую часть дома через котельную. Другой расположен в зоне кухни, он позволит быстро и удобно организовать обед или ужин на свежем воздухе. А третий ведет из спальни на небольшую террасу.
