Описание
Характеристики
Отзывы
Описание
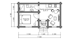
В вариантах указана стоимость строительства дома из разного материала. Цены указаны за строительство дома в ипотеку, при заказе строительства дома за наличный расчет предоставляется скидка 10%. Комната 4,29 м², Кухня-гостиная 12,19 м², Комната 7,89 м², Крыльцо 1,54 м². Общая площадь 30 кв. м .
Характеристики
Площадь
30 кв. м
Отзывы
Отзывов еще никто не оставлял
Аналогичные товары
