Описание
Характеристики
Отзывы
Описание
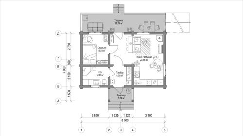
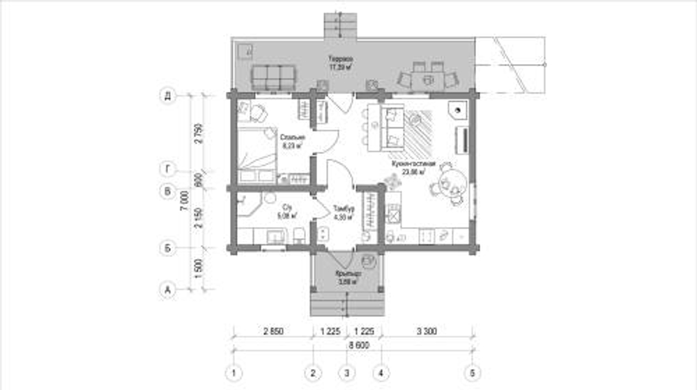
В вариантах указана стоимость строительства дома из разного материала. Цены указаны за строительство дома в ипотеку, при заказе строительства дома за наличный расчет предоставляется скидка 10%. Гостиная 18 м², кухня 12 м², спальня 14 м², спальня 11 м², санузел 5 м², прихожая 6 м², кладовая 3 м², терраса 8 м². Общая площадь: примерно 55 м²
Характеристики
Площадь
51 кв. м
Отзывы
Отзывов еще никто не оставлял
Аналогичные товары
