Описание
Характеристики
Отзывы
Описание
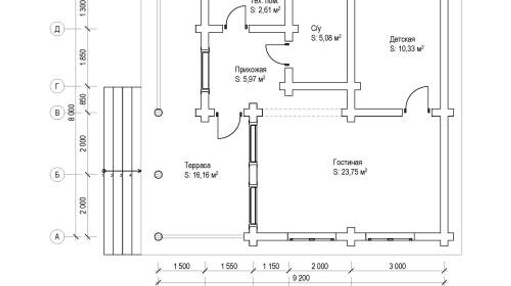
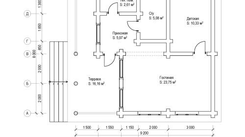
В вариантах указана стоимость строительства дома из разного материала. Цены указаны за строительство дома в ипотеку, при заказе строительства дома за наличный расчет предоставляется скидка 10%. Прихожая 5,08 м², санузел 5,97 м², кухня 16,16 м², гостиная 23,75 м², детская 10,33 м², также указано помещение 1,8 м² общая площадь 74 кв. м
Характеристики
Площадь
74 кв. м
Отзывы
Отзывов еще никто не оставлял
Аналогичные товары
