В вариантах указана стоимость строительства дома из разного материала. Цены указаны за строительство дома в ипотеку, при заказе строительства дома за наличный расчет предоставляется скидка 10%.
доме два входа напротив друг друга и оба под балконами. Один вход ведет в тамбур, а второй в гостиную. Из тамбура можно попасть в просторный санузел и гостиную. Из гостиной – на второй этаж и на кухню. Кухня тут относительно небольшая, 5,52 м2. Гостиная – 17,72 м2.
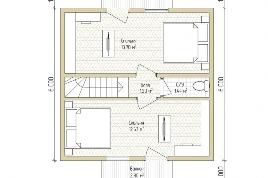
Лестница на второй этаж выходит между стен двух спален и упирается в холл площадью 1,2 метра, за холлом туалет 1,44 м2, слева и справа двери в две спальни, обе имеют размер около 13 м2, а также выходы на балконы, площадь которых 2,8 м2. Это уютный мансардный дом из СИП панелей с 4-мя спальнями, террасой и крыльцом. Такой дом прекрасно подойдет для достаточно большой семьи и каждому тут найдется свой уголок. В дом реализовано два входа, один с крыльца в тамбур, а второй с террасы в совмещенную с гостиной кухню. Площадь террасы 18 м2, крыльца – 4,2 м2. Крыльцо и терраса крытые, огороженные. Планировка первого этажа простая и удобная. Из тамбура можно попасть в котельную и холл. Холл переходит в кухню-гостиную (15,96 м2), здесь же лестница на второй этаж и двери в санузел и спальню (8,87 м2). На втором этаже планировка классическая – небольшой холл, три спальни (7,84 м2 каждая), санузел и небольшая гардеробная. Отметим, что гардеробная сделана благодаря надстройке, которая придала дому более законченный вид, а гардеробной позволила избежать специфических особенностей мансардного дома.
