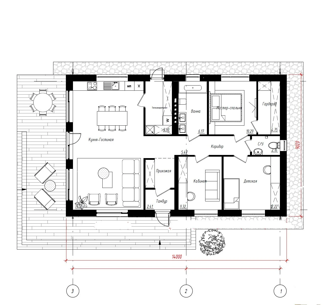
В вариантах указана стоимость строительства дома из разного материала. Цены указаны за строительство дома в ипотеку, при заказе строительства дома за наличный расчет предоставляется скидка 10%. Архитектурный проект одноэтажного загородного дома нового формата. Площадь дома составляет 94.5 квадратных метров, а размеры — 9 х 13 метров. Дом можно разместить на участке любой формы, он предназначен для круглогодичного проживания в комфортных условиях. Этот дом отлично подойдёт для постоянного проживания современной семьи.
Архитектура дома отличается простотой и элегантностью, воплощая в себе стиль и функциональность. Площадь дома идеально подходит для комфортной жизни и включает в себя все необходимое.Планировка дома включает: тамбур, котельную, прихожую, кухню-гостиную, гостевой санузел, две детские спальни, просторную хозяйскую спальню с хранением и гардероб.
Стены дома выполнены из газобетона, что позволяет легко адаптировать их под другие материалы при необходимости. Отделка выполнена из штукатурки, что придаёт зданию особую эстетику.
Панорамные окна выходят на участок, позволяя наслаждаться солнечным светом и создавая уютную атмосферу в доме. Кроме того, есть выход на террасу, где можно пообедать на свежем воздухе в тёплое время года.
Внутри дома мы разместили просторную гостиную с кухней, которая станет идеальным местом для отдыха и общения с друзьями. Кухня оснащена всем необходимым оборудованием.
Мы учли все детали, чтобы создать дом, который будет полностью соответствовать вашим потребностям и желаниям. Этот дом идеально подойдёт для тех, кто ищет уютное и комфортное жильё.
В проект дома включены все подробные чертежи архитектурного раздела, необходимые для получения разрешения на строительство, включая возможность использования ипотеки.
